NZR ACCORD-Stinger & Rear Engine Tractor Concept

nzr-chassis_bottom-04
Rear Engine development only in conjunction with ACCORD Stinger semi-trailers
NZR Scania 6x4.jpg Re-scaled 05
NZR Pete D train Super Accord Semi 02
NZR Stinger Off-track Compare_2881
NZR ACCORD (6) Axle 05
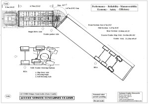
NZR Accord-Stinger CO Semi Dwg #007
NZR ACCORD Semi-trailer c/w Pusher e-Axle

            

Accord Semi-trailers prevent a full jackknife, increase cube 20%, improve maneuverability 50% and save approx. 640 gallons of fuel per year per tractor.

Solving Capacity Issues with ACCORD Semi-trailers